T+C VIVIENDA DE INTERÉS SOCIAL 
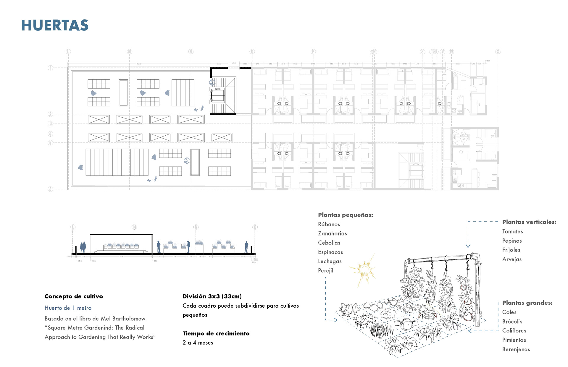
Este curso tiene como objetivo principal dar a conocer la importancia de las viviendas de interés social, su desarrollo y construcción. El ejercicio propuesto es diseñar un conjunto de vivienda VIS ubicado al sur de Bogotá, que este dentro del plan de renovación urbana. Además, cuenta con un reto, la inclinación del terreno, debemos cumplir con requisitos básicos sobre el número de viviendas, equipamientos unos índices de construcción y lograr resolver los irrenunciables. Los irrenunciables son aspectos que van a hacer que el conjunto sea de calidad.
Universidad de Los Andes 
Proyecto Innovación y Vivienda 
Nicolle Báez López 
2020-2 
Back to Top